Register your interest Enquire

Plot 4 – Meadow View
Reserved

Maureen Mary Meadows, Waters Upton, Telford

£279,995

This superior two-bedroom bungalow boasts a high standard specification, thoughtfully designed for modern-day living.

At the rear of this home is a sleek ‘handleless’ kitchen by Häcker equipped with modern integrated appliances. With a French door set opening out onto the rear patio, this room offers the perfect bright and airy space for both everyday living and entertaining.

Enjoy plenty of space for peaceful moments in the inviting lounge, which features a modern wall-mounted media unit as standard.

The magnificent master bedroom enjoys its own en suite with a walk-in shower enclosure, a vanity unit, and quality sanitaryware and brassware. The adjacent large bathroom echoes the same high-quality finishes.

Both spacious bedrooms feature built-in wardrobes, providing practical and discreet storage, while a conveniently positioned loft hatch with ladder access offers additional, easily accessible storage space.

There is a front garden with border planting and private parking for two vehicles. The rear garden is fully landscaped to provide a low maintenance finish.

 

View Gallery
View location on development
Incredible Specification to Include:
  • 2 Bed Detached
  • 809 SQ FT
  • Key in the Door Price
  • Kitchen by Häcker with Integrated Appliances
  • Feature Media Wall Unit in the Lounge
  • Built-in Wardrobes Bed 1 & 2
  • External 'Up and Down' Wall Lights
  • Futureproof, Air Source Central Heating System & Hot Water Storage
  • Simpson & Partners EV Charger
  • FTTP (Fibre to the Property) Broadband
  • East Facing Garden
  • EPC Rating 'C'
  • Freehold
  • 10-Year Structural Warranty provided by AHCI
Download Specification

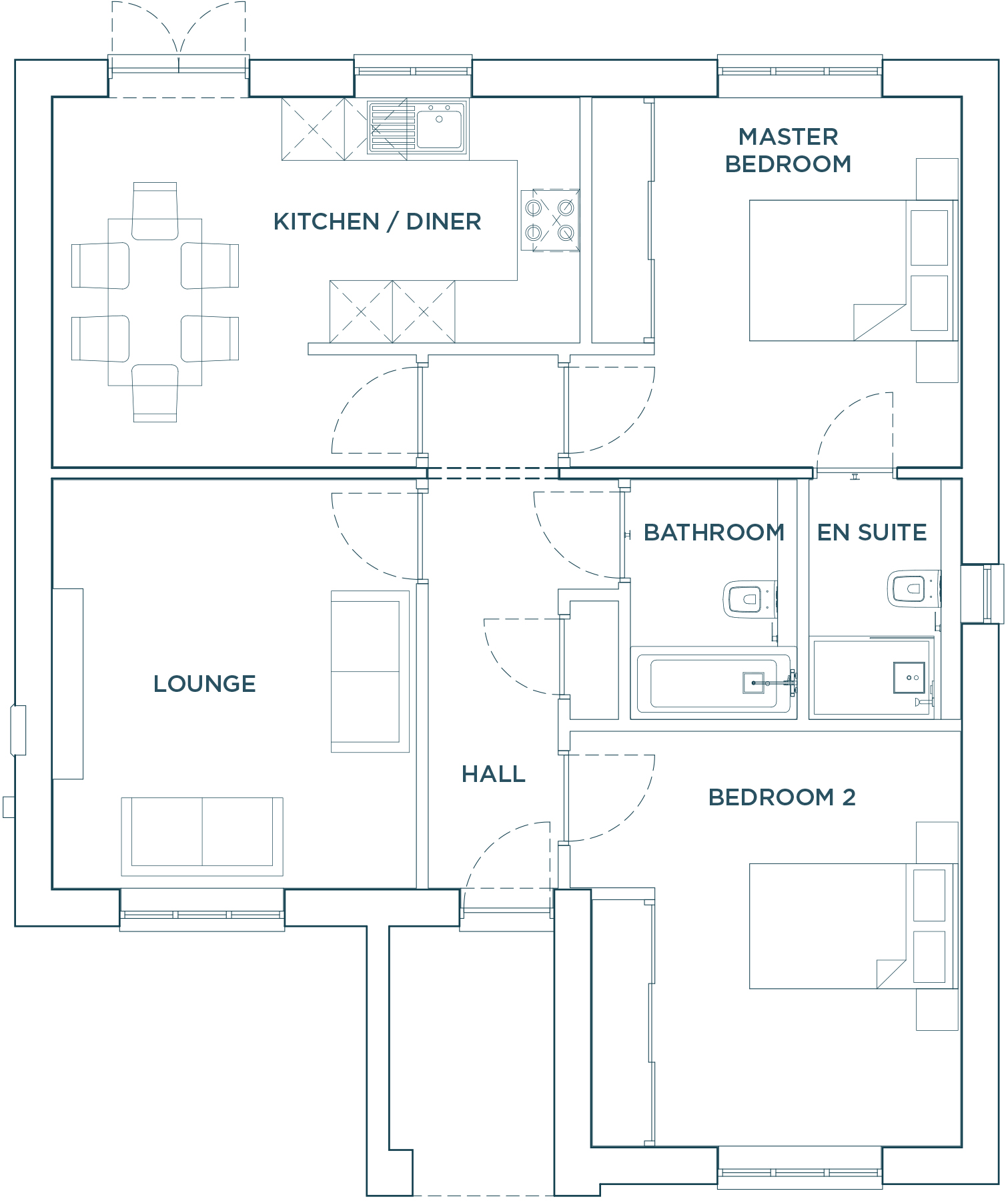
Ground Floor

Ground Floor
  • Kitchen/Dining 16' 7" x 11' 7"
  • Lounge 12' 10" x 11' 5"
  • Master Bedroom 11' 7" x 9' 8"
  • Master En Suite 7' 7" x 4' 9"
  • Bedroom 2 13' 1" x 9' 8"
  • Bathroom 7' 7" x 5' 3"
  • Hall 16' 10" x 4' 1"
  • Porch 8' 5" x 4' 5"

Similar Properties

Plot 2 – Maureens Nest
For Sale
Plot 2 – Maureens Nest
  • £279,995
  • 2 Bed Detached
  • 809 SQ FT
  • Key in the Door Price
  • Futureproof, Air Source Central Heating System & Hot Water Storage
  • Simpson & Partners EV Charger
  • 10-Year Structural Warranty provided by AHCI
  • Available Summer 2026
Find out more
Plot 3 – Marytree Place
Reserved
Plot 3 – Marytree Place
  • £279,995
  • 2 Bed Detached
  • 809 SQ FT
  • Key in the Door Price
  • Futureproof, Air Source Central Heating System & Hot Water Storage
  • Simpson & Partners EV Charger
  • 10-Year Structural Warranty provided by AHCI
  • Available Summer 2026
Find out more
Plot 1 – The Wildflower
Reserved
Plot 1 – The Wildflower
  • £279,995
  • 2 Bed Detached
  • 809 SQ FT
  • Key in the Door Price
  • Futureproof, Air Source Central Heating System & Hot Water Storage
  • Simpson & Partners EV Charger
  • FTTP (Fibre to the Property) Broadband
  • 10-Year Structural Warranty provided by AHCI
  • Available Summer 2026
Find out more